|
K + K
Kemper + Kemper Planungs-GmbH
Architekten
& Ingenieure
Projekte 4 Detailplanung, CAD-Service, Isometrien, Detailbauleitung, Statik

Neugestaltung Büro-Eingangsbereich

Verhüllter
Umbau am Abend
Dachsanierung

Feuerwehrpläne
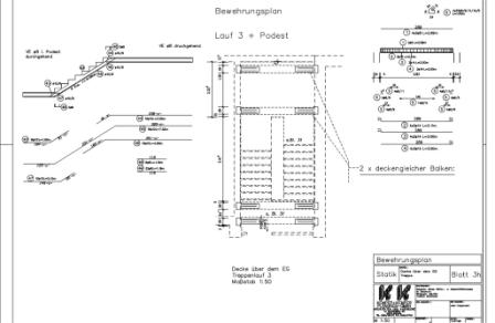
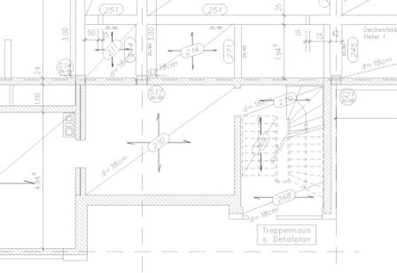
Statik Treppe

Feuerwehrpläne

Detail Decke, Statik-Bauleitung

Isometrie Geschosspläne Aufstockung Wohnhaus

Detail Fußbodenverlegung Trockenestrich Detail Fassadensanierung
|